Three Arches Townhouse

CARROLL GARDENS

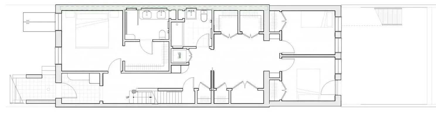
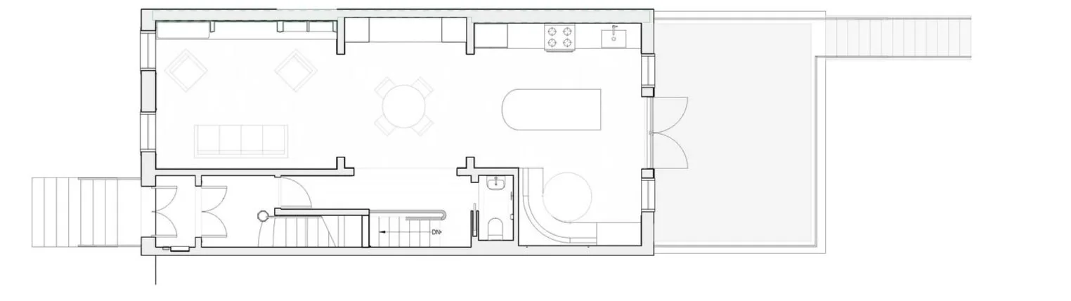
Nestled in the heart of Carroll Gardens, Brooklyn, The Arches is a townhouse renovation that merges timeless charm with contemporary living. Designed for a family of four, the project combines the parlor and garden levels into a warm and welcoming duplex with an addition off the back while the top two floors remain rentals.

Emphasizing a balance between historic preservation and modern design, the renovation carefully salvages original architectural details while introducing thoughtful, transitional interiors. The result is a duplex home that celebrates both its storied past and its vibrant future.

EST. COMPLETION SUMMER  ‘25
Previous
Previous

The Manchester

Next
Next

Private Residence Rye NY